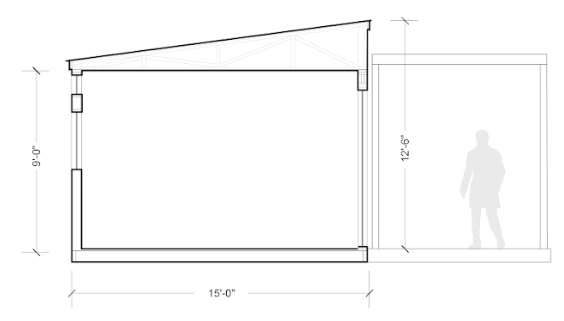
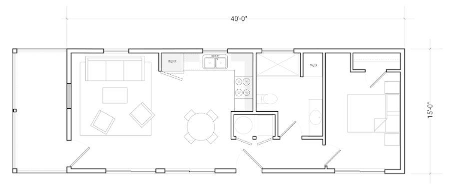
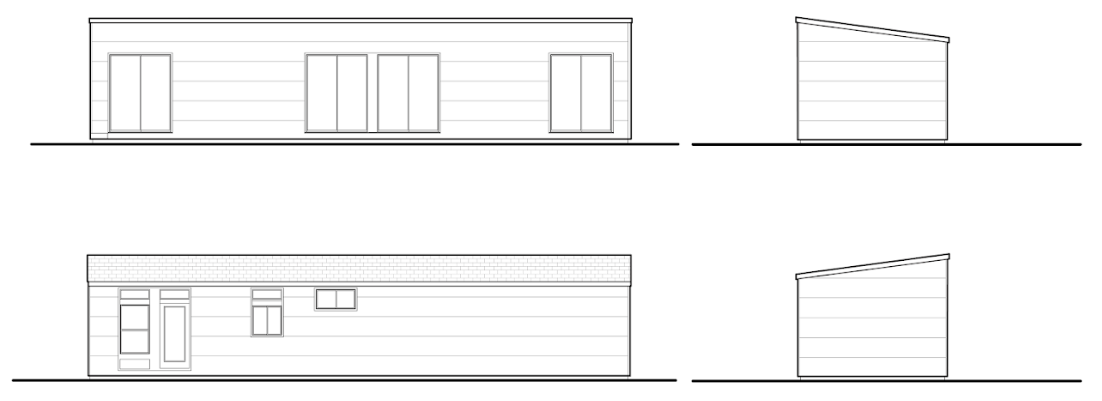
Temescal
Shed Roofs, 9’ high ceilings, 96” sliders, sustainable materials, wide profile siding (or custom)
Is there a difference between modular and manufactured housing?
“Modular” is a form of prefabrication! Modular / Manufactured home projects represent the most concentrated and often “volumetric” form of prefabrication, focused on moving as much complexity as possible away from the jobsite and into a factory. In Cassette’s case, the entire home is often a single module - finished and even inspected at the factory – leaving very little to build on-site.
A home can be manufactured in multiple modules. But sometimes people get the words confused with the actual approval process and building codes.
Modular usually refers to builders building factory-built homes in accordance with local building codes - and Manufactured with a capital “M” usually is referring to building factory-built homes to a federal standard called HUD, according to regional safety differences. Both are overseen in most states by the same state agency, and many factories that build HUD homes also build them to local codes.
For a deeper dive into this subject, we’ve written a more extensive article here. You can also schedule a call with our team and we’d be happy to answer questions specific to your project.
When are payments due for Cassette contracts?
Cassette begins every project with a free site assessment, usually on a video call, and often including a representative visiting the site physically.
To begin actual site planning, logistics assessments and site-work budgeting, we require a good-faith $10,000 predevelopment deposit that we credit against the final contract value.
The home is purchased in two payments through escrow: a 25% initial deposit commitment after predevelopment, and 75% upon shipment of the home. We take those payments through a third party escrow process.
On site construction is billed open-book as it proceeds on-site. That portion includes the actual shipment, installation, the entry decks and all utility connections to make the home operational. These costs are typically incurred 4 - 6 weeks at the end of the project.
What is included (or not) in my contract?
Cassette’s contract structure includes all design, manufacturing, and construction costs related to the home itself and the site permitting and construction required to make it habitable.
While the state permit fees are covered within the home contract itself, the on-site permits usually require minimal fees to the local jurisdiction that are not included in your Cassette contract.
Typically we would also recommend that our customers pay for a site survey and a soils report to validate the property lines, and to validate the engineering requirements of the foundation system we choose.
What does the contract look like?
Once you’ve reviewed your predevelopment assessment package and are ready to move forward on a project with Cassette, we’ll execute the following two contracts in parallel – one for the home itself, and the other for the design & construction work we will perform on-site to install and make it habitable.
The Home Purchase Contract has a fixed price for the pre-permitted, manufactured house you selected during predevelopment. It also includes a final production insignia approved by the Federal Housing and Urban Development agency, ensuring it has been permitted, inspected and approved to meet all required building codes.
The Design-Build Contract covers the design layout drawings specific to your local site, the permitting package and the actual construction work that Cassette will perform when the home arrives, to connect the home and make it habitable.
What if I pay a deposit on a home and something happens to the company before it is delivered?
In short - Cassette abides by the strictest of consumer protections afforded by the real estate and homebuilding industry, which is a third-party escrow process. Once you have placed a deposit on your Cassette home, your money is protected by an escrow company throughout the manufacturing process, and Cassette does not see a dime until your home is ready for delivery.
How will my factory-built home be valued in the future?
Your Cassette home, once locally permitted and installed on a permanent foundation, is valued no differently than any other home on a piece of real estate.
The title is real property, and its value has everything to do with the value of the land plus the quality of the home that you are getting installed and the finishes that you choose.
Cassette aims to build the highest quality of architectural design, using top quality factories and on-site finish products to achieve the highest real estate value for our customers.
What’s included in the module?
Each module is a fully-fitted out home, including exterior cladding, windows, doors, roofing, insulation, interior finishes, kitchen with appliances, plumbing, HVAC, and electrical systems.
Can I customize my Cassette Jolly?
There are a number of upgrades and accessories that we offer on this site including all custom flooring, cabinet finishes, and even an option to finish the exterior with different cladding or delivery without the final cladding.
Just explore it with a Cassette team member if you would like to vary from the base options.
What does a project require (and cost) outside of the factory-produced unit?
At a minimum you will need foundations for the unit to sit on and utility connections - water supply, waste, electrical and potentially cable/wifi. Depending on the site, you may require site paving, fencing, decks, stairs, landscaping etc.
These costs are typically less than 30% of the overall cost of a project, but that depends onsite access and how extensively you’d like to hardscape the site.
Other costs that are not included in the Cassette contracts are local fees when you pull the building permit with our team, and the cost of any extra engineering that may be required, like a site survey or soils report.
How do you manage risk?
Traditional construction work is notoriously fraught with risk. Risk on cost, time and quality. Cassette has taken the largest piece of the construction project into a factory setting to control such factors and bring much needed certainty into the construction process. A fixed, reasonable price; a much shorter construction period and a more reliable, high quality of construction and design detailing.
Is Cassette a licensed contractor?
Cassette is a licensed general contractor in California, and works with a number of partners in other states. We are also a licensed dealer for manufactured housing, and as such can work with some of the best factories around the country. Our team has decades of experience managing the delivery of complex construction projects around the world.
Sustainability
By design, Cassette homes and our unique building process treads lightly on the earth.
As part of a generational movement toward factory-built housing, we and our modular peers are helping construction to transition to more eco-friendly process overall, shaving up to 80% of waste out of the traditional processes.
The design of our modules carefully considers the natural environment and where possible we source local and recycled products to minimize our environmental footprint.
By working under controlled conditions and building a tight building envelope, we’re also able to exceed even the most stringent State guidelines.
Accessibility
Our units are designed to the requirements of the Americans with Disabilities Act for private homes, and upon request Cassette can modify the kitchen and bathrooms to achieve greater wheelchair accessibility.
Please inquire about specific needs, we will aim to work with you on an individual basis to achieve your goals.
.jpeg)



.jpg)
.png)



















%20--%20square%20--%20900x900.webp)